Live Help: (949) 988-8378
FREE Mockups w/Quote
The best way to shop for fireplace screens & doors
1: Send us pictures of your fireplace
2: We create FREE Mockups
3: You choose the one you like best!
Plus...FREE Mockups!
Custom Fireplace Screens & Doors
FREE Design Service

Custom Fireplace Doors for Fireplace Remodel - Project #21017

Customer Comments: I found your website and we are in the process of remodeling our fireplace to stacked stone all the way up the wall and adding a mantle. We want to replace the fireplace doors at the same time. I only have pictures of what it looks like now before the remodel. Can you work with this?

Our Comments: Here are the mockups for the doors you liked after our communications.

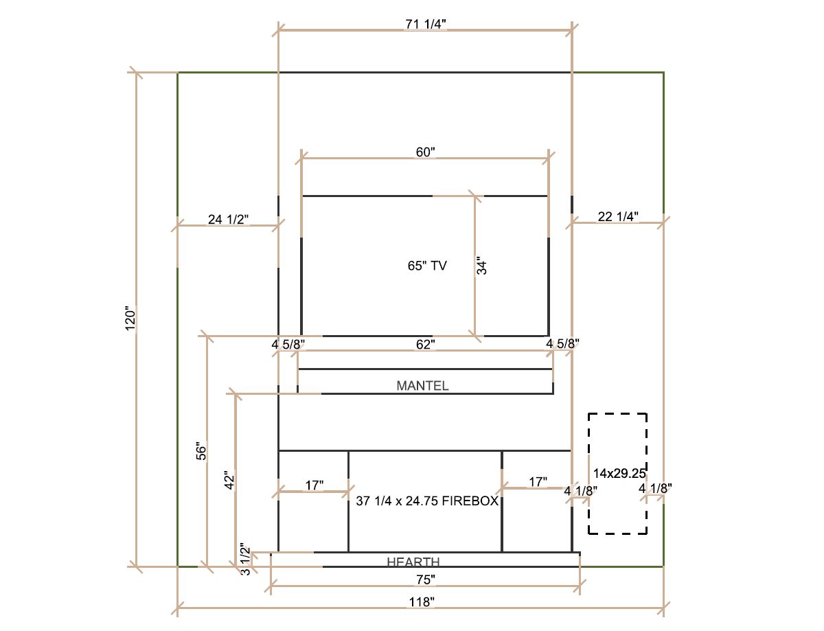
Fireplace Opening: 36" W x 24 1/8" H

Before
Before:

Hand Crafted Old World Wrought Iron

Wrought Iron
Wrought Iron Fireplace Door Option #1: Hand Crafted Olde World Wrought Iron Cabinet Fireplace Door in Distressed Medium Bronze with Clear Glass and Heavy Duty Gate Mesh Backup Doors.
Wrought Iron
Wrought Iron Fireplace Door Option #1: Example

Hand Crafted Old World Wrought Iron Scroll

Wrought Iron
Wrought Iron Fireplace Door Option #2A: Hand Crafted Olde World Wrought Iron Cabinet Fireplace Door with Scroll Detail in Distressed Buff Pewter with Clear Glass and Heavy Duty Gate Mesh Backup Doors.
Wrought Iron
Wrought Iron Fireplace Door Option #2B: Hand Crafted Olde World Wrought Iron Cabinet Fireplace Door with Scroll Detail in Distressed Black with Clear Glass and Heavy Duty Gate Mesh Backup Doors.
Wrought Iron
Wrought Iron Fireplace Door Option #2: Example

Hearth Creations Industrial Age-3

Wrought Iron
Wrought Iron Fireplace Door Option #3: Hearth Creations Industrial Age-3 Cabinet Fireplace Door in Black with Burnished Bronze Hammered Doors, Clear Glass and Heavy Duty Gate Mesh Backup Doors.
Wrought Iron
Wrought Iron Fireplace Door Option #3: Example

Other Pictures

Fig #1 - Drawing of Remodel Project
Fig #2 - Closeup
Fig #3 - Room
Fig #4 - Room

Glass Door Mesh Options

If you are planning on burning anything in your fireplace, you need to have mesh behind the glass so you can burn a fire with the doors open. You can chooe between gate mesh backup doors and sliding mesh curtains. Functionally, gate mesh performs the best as the wire has smaller holes that sparks cannot get through. Aesthetically, mesh curtains may be preferred because they do not have a vertical center frame that obstructs the view of the fire. When you are not using the fire or you want a complete unobstructed view, they do not stick out like gate mesh doors when they are opened.

We are showing these options on a flat steel bifold door with a satin brass overlay and gray glass.

No Mesh
Gate Mesh Backup Doors
Mesh Curtains

Glass Options

Tempered vs Ceramic Glass: Tempered glass can handle sustained temperatures up to about 450F without breaking from heat and should be at least 8" from the flames. Ceramic glass can handle sustained temperatures up to about 1450F and be in direct contact with the flames. If you wish to burn fires with the doors closed, I highly recommend upgrading to ceramic glass. Ceramic glass is $800-$2000 more than tempered glass depending on the manufacturer.

Not all doors are available with all of these glass options.

Scale & Finish Disclaimer: Mockups shown on this site are not necessarily to scale and are meant to help you choose the style of your screen or door. The appearance of finishes represented may vary between digital monitors and screens. I do my best to recommend finishes that I believe will blend with your decor and flatter your fireplace. You can view finish options here:

Hearth Creations Finishes
Design Specialties Finishes
Hand Crafted Wrought Iron Finishes
PW Finishes
Stone Manufacturings Trims & Finishes

Samples for some finishes are available upon request.

It all starts here!

FREE DESIGN SERVICE
Get Free Mockups and a Price Quote

Fill Out The Form Below

or Email: greg@fireplacetreatments.com
INSTRUCTIONS: Send me your pictures and I will create mockups that show how custom made fireplace screens or doors will look in your home. There's no better way to find the perfect treatment for your fireplace. I also do mockups for gas logs!

We Need These 2 Photos:

Photo #1: With your camera sideways, take a picture directly in front of the fireplace from far enough away to see the entire fireplace floor to ceiling like this.
Photo #2: With your back to the fireplace, take a picture looking straight out into the room so we can see the decor directly in front of the fireplace.
10 to 500 characters required (0)
Photos: Use the buttons below to upload your photos.
Photo #1:
Photo #2:
Add an extra photo of your choice (not required)
Photo #3:
Submit

Privacy Note: Your privacy is very important to me. I will never divulge your email address or contact information to any entity outside of my company unless necessary to process your order. I reserve the right to post your pictures on my website along with your comments so others can view your project for ideas. In any case, I will not post your last name or contact info on this website. By using my design service, you are giving me all rights to post your photos and comments on any of my websites and marketing materials.

IMPORTANT NOTICE
Stone Manufacturing is DISCONTINUED

Stone Manufacturing has closed their manufacturing facility permanently. Items featured on this website that are made by Stone Manufacturing are no longer available. If you are interested in any their products, please email: greg@fireplacetreatments.com with subject "Stone Mfg" and I will do my best to help you find a viable alternative.